Lujoso Piso en Alquiler en Chamberí (ref: CH2626)


alquiler: 10.500 €/mes
ref. CH2626
301 m2 construidos.
265 m2 útiles.
Resumen
Dormitorios 6
Baños 6
Cocina Amueblada
Trastero
Garaje
Calificación Energética Pendiente certificar

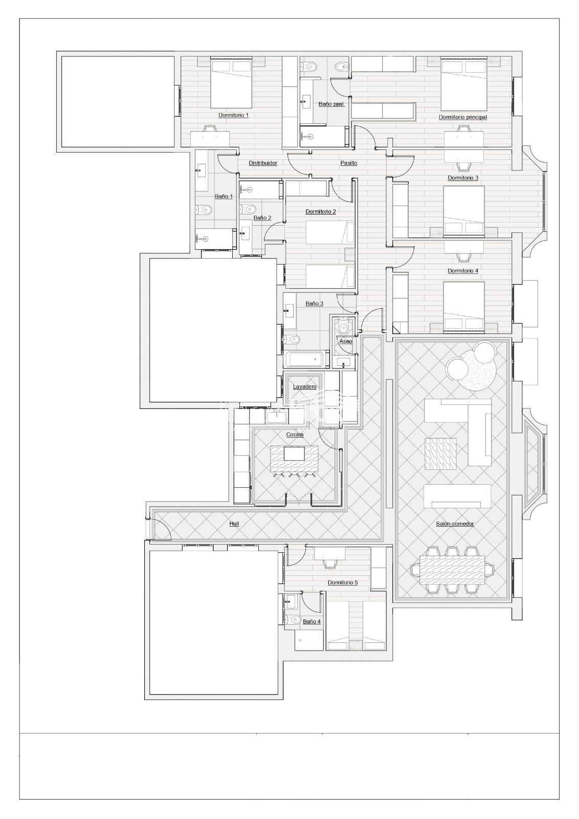
Fantástico piso de lujo en Chamberí, completamente exterior y ubicado en una quinta planta, con seis balcones a la calle que garantizan una luminosidad excepcional.

La vivienda, de 300 m², ha sido sometida a una reforma integral a estrenar y estará disponible a partir del 1 de mayo de 2026. Cuenta con una amplia cocina amueblada y equipada con isla central, además de zona independiente de lavandería y tendedero. El gran salón comedor destaca por su amplitud y luz natural.

Dispone de 6 dormitorios: un espectacular dormitorio principal con vestidor y baño en suite, tres dormitorios adicionales también con baño en suite, y dos dormitorios que comparten un baño. Completa la distribución un aseo de cortesía.

Incluye 2 plazas de garaje y trastero en finca contigua. La finca cuenta con portero físico residente.

Una propiedad exclusiva, ideal para quienes buscan espacio, luz y una ubicación privilegiada en una de las zonas más demandadas de Madrid.

Solicite más información de este inmueble: